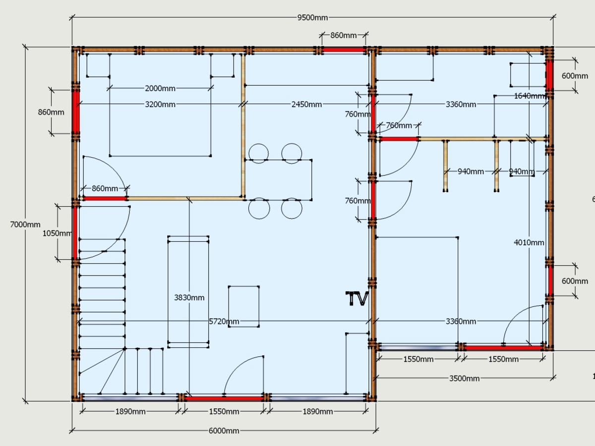
Brvnare veće od 60 m² idealne su za one koji žele pravi dom u prirodi, sa dovoljno prostora za porodicu, goste i funkcionalan životni stil. Ovi modeli pružaju visok nivo udobnosti, odličnu organizaciju prostorija i trajnu stabilnost zahvaljujući kvalitetnoj drvenoj konstrukciji. Uz mogućnost prilagođavanja rasporeda i izgleda, predstavljaju savršen izbor za dugoročno stanovanje ili luksuzni odmor.















































































































